AmetekHaydonKerk AmetekAMS
Skip to content

RGS08

The Motorized RGS08 Linear Rail is available with size 23 hybrid stepper motor developing forces up to 222 N (50 lbs). Rails can also be customized in stroke length, one or dual carriage and coatings. Contact an Applications Engineer for any technical support needed.
  • Specifications +


    Lead Lead Code Design Load Screw Inertia
    Rail Series Motor Series in. (mm) lbs. (kg) oz. in.sec.2/in. (Kgm2/m)
    RGS08K - M0100 - XXX E57H4 .100 (2.54) 100 50 (22) 5.2 x 10-5 (20.0 x 10-6)
    E57M4
    RGS08K - M0200 - XXX E57H4 .200 (5.08) 200 50 (22) 5.2 x 10-5 (20.0 x 10-6)
    E57M4
    RGS08K - M0500 - XXX E57H4 .500 (12.70) 500 50 (22) 5.2 x 10-5 (20.0 x 10-6)
    E57M4
    RGS08K - M1000 - XXX E57H4 1.000 (25.40) 1000 50 (22) 5.2 x 10-5 (20.0 x 10-6)
    E57M4

    Size 23: 57 mm (2.3 in) Motor 1.8 degree
    Series
    E57H4-V E57M4-V
    Stack Length
    Single Double
    Wiring Units Bipolar Bipolar
    Step Angle degree 1.8° 1.8°
    Winding voltage VDC 3.25 5 12 3.25 5 12
    Current/Phase A rms 2 1.3 0.54 3.85 2.5 1.0
    Resistance/Phase ohms (Ω) 1.63 3.85 22.2  0.98 2.0 12
    Inductance/Phase mH 3.5 10.5 58 2.3 7.6 35
    Power Input Watts 13 25
    Motor Rotor Inertia gcm2 166 332
    Standard motors are Class B rated for a maximum temperature of 130°C (155°C for Class F)
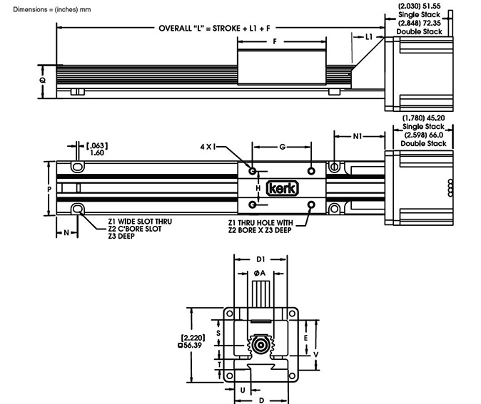
  • Dimensional Drawings +


    Please note: Metric numbers are for reference only.


    RGS08 A D D1 E F G H I* L1 N
    (inch) (0.80) (1.60) (1.60) (1.06) (2.70) (1.75) (1.00) 10-24 (1.00) (0.625)
    mm 20.3 40.6 40.6 26.9 68.6 44.5 25.4 UNC 25.4 15.9
    RGS08 N1 P Q S T U V Z1 Z2 Z3
    (inch) (1.50) (1.25) (1.0) (0.74) (0.30) (0.51) (1.47) (0.20) (0.33) (0.19)
    mm 38.1 15.9 25.4 18.8 7.6 12.9 37.3 5.1 8.4 4.8
    *Metric threads also available for carriage.

    Motorized RGS08 with Size 23 Hybrid Stepper Motor
    Recommended for horizontal loads up to 50 lbs (222 N)

  • Lubrication +


    Kerk RGS Linear Guides have Kerkote® TFE on all critical surfaces.

    All moving surfaces include Kerkite® engineered polymers running on Kerkote® TFE coating, providing a strong, stable platform for a variety of linear motion applications.

    Kerkote TFE is a soft coating, a long-term dry lubricant that is optimized for softer plastics like acetyls and nylons, with or without mechanical reinforcement. Lubrication to the nut / lead screw interface occurs by the nut picking up Kerkote TFE particles from the coating as well as from the migration of the internal lubricant within the plastic nut. The lubricant, although solid, also has some “spreading” ability as in fluid lubricants. Kerkote TFE coated screws provide the maximum level of self-lubrication and should not be additionally lubricated or used in environments where oils or other lubricant contamination is possible.
  • Customize +


    Haydon Kerk can custom-design and manufacture unique motorized RGS linear rails solutions to your equipment requirements. Special motor attributes, rail lengths, multiple carriages, alternate lead screws, lubrication, encoders and integrated drives are just some of the typical adaptations engineered to customer needs. Every Haydon Kerk linear rail product is supported by an experienced technical team recognized for innovation, customization, and dedicated customer service.
  • Part Number Guide +



    RG

    S

    08

    K

    -

    M

    0100

    -

    XXX

    Prefix

    Frame Style

    Frame Size Load

    Coating

     

    Drive/

    Mounting

    Nominal Thread Lead Code

     

    Unique Identifier

    RG=

    Rapid Guide Screw

    S=Standard

    08=50 lbs (222 N) (Maximum static load)

    K=TFE Kerkote
    X=Special (example: Kerkote with grease)

     

    M=Motorized

    0098=.098-in (2.50)
    0100=.100-in (2.54)
    0197=.197-in (5.00)
    0200=.200-in (5.08)
    0500=.500-in (12.70)
    0630=.630-in (16.00)
    1000=1.000-in (25.4)

     

    Suffix used to identify specific motors or a proprietary suffix assigned to a specific customer application. The identifier can apply to either a standard or custom part


    Carriage holes available in Metric sizes
    M3
    M4
    M5
    M6

    NOTE: Dashes must be included in Part Number (–) as shown above. For assistance call our Engineering Team at 203 756 7441.